Madison Floor Plan Sarah Kulynych June 10, 2025

The Madison

From $559,900

Highlights

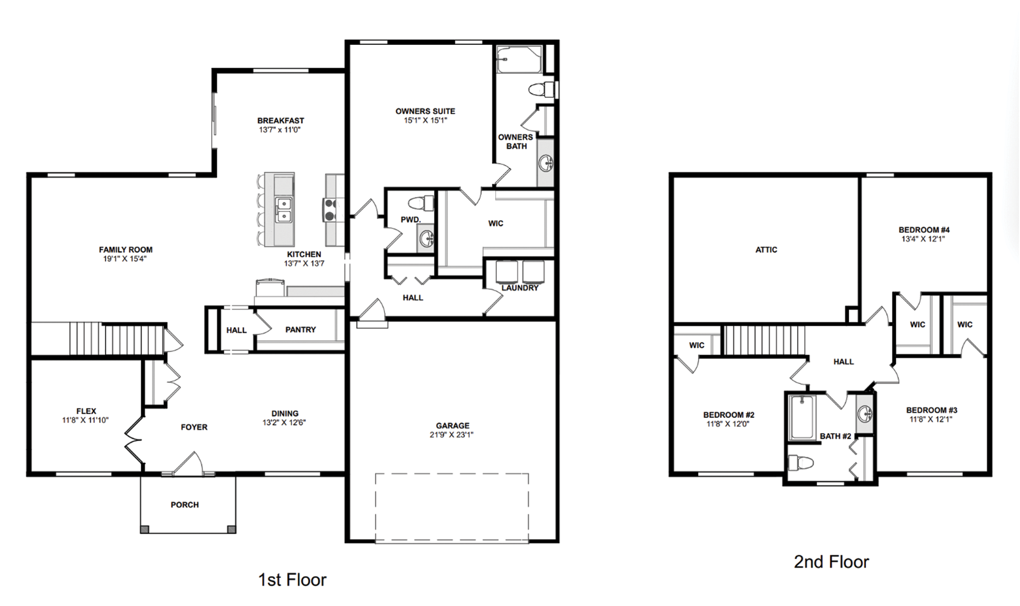
4 Bed   |  3.5 Bath   |   2,657 SF  |  2 Garage

Located in Marysville, PA, tucked into the riverside trees just outside the bustle, Rockville Estates invites you to build the kind of home you’ve always dreamed about. With a main level owners suite, 3 additional bedrooms and a total of 3.5 bathrooms, this nice sized plan is all about convenience and functionality.

*All pricing includes base lot cost. Premiums apply to select lots.

Download Floorplan

About Rockville Estates

Located in Marysville, PA, tucked into the riverside trees just outside the bustle, Rockville Estates invites you to build the kind of home you’ve always dreamed about. Whether you select from our exclusive, woodland-inspired home plans or bring your own personalized ideas to the table, the choice is entirely yours.
 
Rockville Estates is easygoing and surrounded by nature. With peaceful wooded lots, sunset views, and even room for a treehouse, this new Yingst community brings the calm of the outdoors together with the convenience of nearby town life. It’s not just a place to live, it’s where your forever home begins. 

Exlpore More Floor Plans

From $535,900

Fairfax

4 Bed   |   2.5 Bath   |   2,629 SF

From $545,990

Hemlock

3 Bed   |   2 Bath   |  2,437 SF

From $509,900

Cameron

3 Bed   |   2 Bath   |   1,637 SF

sara weiss
Questions?

Ask Sara

Want to talk through the details? Sara is here to help. Whether you have questions about pricing, available homesites, floor plan options, included features, or next steps, she can walk you through everything you need to know.

Reach out to Sara today to learn more about building your new home in Rockville Estates.

Scroll to Top

Reset password

Enter your email address and we will send you a link to change your password.

Get started with your account

to save your favourite homes and more

Sign up with email

Get started with your account

to save your favourite homes and more

By clicking the «SIGN UP» button you agree to the Terms of Use and Privacy Policy
Powered by Estatik